panelizados
MINI Terrahauss.
Disfruta de la doble altura de 5,35 m en el living y comedor.
Este diseño optimiza la entrada de luz natural y maximiza la sensación de amplitud y sofisticación.
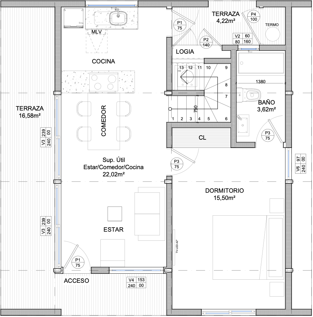
1 dormitorio y 1 baño.
Amplio living-comedor y cocina integrada.
Altura interior: 2,40m.
Doble altura en áreas comunes: 5,35m.
90m2 en dos pisos
8 meses llave en mano
Tu casa lista para disfrutarla en tiempo récord.
3.990 UF IVA incluido
Terra Hauss tiene un valor de 3.900 UF IVA incluido en la Región Metropolitana y 4.290 UF IVA incluido en Puerto Varas.
Consulta el precio disponible para tu región.
Fundaciones: Sobre radier
Aislación térmica: Muros primer piso lana mineral 80mm. Cielo y segundo piso panel SIP
Ventanas: Termopanel 5 9 4 mm marcos PVC
Terminación interior: Volcanita enlucida pintada blanca
Terminación Pisos: Área común: porcelanato. Área privada: piso flotante. Baños: cerámica
Revestimiento Exterior: Muros laterales: acero galvanizado negro. Muros frontales: pino tinglado
Iluminación: LED
Puertas: Acceso exterior: madera lenga. Cocina e interior: MDF alta densidad
ficha técnica
Plantas
algunos de nuestros proyectos.
visita nuestras casas piloto.
-

VITACURA
Casa Piloto Tecno Fast Home
Nueva Costanera 3987, Vitacura, RM.
Lunes a viernes de 10:30 a 19.30 hrs.
Sábado de 10:00 a 14:00 hrs. -

PUERTO VARAS
-

COYHAIQUE
Casa Piloto Tecno Fast Home
La Plaza 219, Coyhaique, Región de Aysén.
Lunes a viernes de 10:30 a 19.30 hrs.
Sábado de 10:00 a 14:00 hrs.